- Страница подбора недвижимости ВКБ-Новостройки
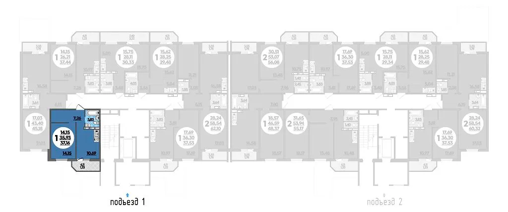
- Квартира № 001 в ЖК Южная Долина : подъезд 1, этаж 1, 37.16 м2 в Крымск, стоимость: купить квартиру – 115 500 ₽ за квадрат от застройщика.
1-комнатная квартира 37.16м2 в ЖК Южная Долина, №001
1-комнатная квартира 37.16м2 в ЖК Южная Долина, №001
Страница квартиры

в ЖК Южная Долина
Акции
Все квартиры в ЖК Южная долина сдаются с готовым ремонтом – получайте ключи и переезжайте! Вы экономите деньги, нервы и время на поиске строительной бригады и закупке материалов.

Калькулятор ипотеки
Произведенные расчеты носят приблизительный характер. Более точную информацию могут предоставить представители банка.
попробуйте изменить параметры калькулятора
Произведенные расчеты носят приблизительный характер. Более точную информацию могут предоставить представители банка.
Доступные программы
Остались вопросы?












