- Страница подбора недвижимости ВКБ-Новостройки
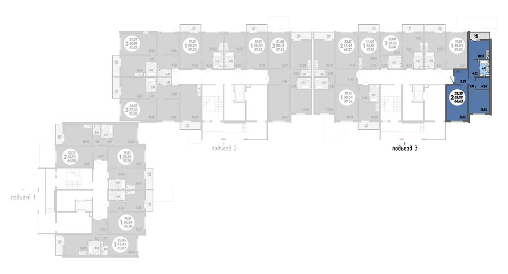
- Квартира № 095 в ЖК Предгорье Лаго-Наки : подъезд 3, этаж 1, 64.63 м2 в Майкоп, стоимость: купить квартиру – 114 513 ₽ за квадрат от застройщика.
2-комнатная квартира 64.63м2 в ЖК Предгорье Лаго-Наки, №095
2-комнатная квартира 64.63м2 в ЖК Предгорье Лаго-Наки, №095
Страница квартирыв ЖК Предгорье Лаго-Наки
Акции
Все квартиры в жилом квартале Предгорье Лаго-Наки сдаются с полной внутренней отделкой. Получайте ключи и переезжайте!

Калькулятор ипотеки
Произведенные расчеты носят приблизительный характер. Более точную информацию могут предоставить представители банка.
попробуйте изменить параметры калькулятора
Произведенные расчеты носят приблизительный характер. Более точную информацию могут предоставить представители банка.
Доступные программы
Остались вопросы?









