- Страница подбора недвижимости ВКБ-Новостройки
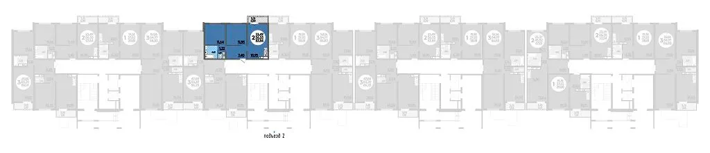
- Квартира № 081 в ЖК Город у моря : подъезд 2, этаж 1, 57.54 м2 в Новороссийск, стоимость: купить квартиру – 155 805 ₽ за квадрат от застройщика.
2-комнатная квартира 57.54м2 в ЖК Город у моря, №081
2-комнатная квартира 57.54м2 в ЖК Город у моря, №081
Страница квартиры

в ЖК Город у моря
Акции
Выбирайте квартиру с готовым ремонтом от застройщика, получайте ключи и переезжайте! Вы экономите деньги, нервы и время на поиске строительной бригады и закупке материалов.

Калькулятор ипотеки
Произведенные расчеты носят приблизительный характер. Более точную информацию могут предоставить представители банка.
попробуйте изменить параметры калькулятора
Произведенные расчеты носят приблизительный характер. Более точную информацию могут предоставить представители банка.
Доступные программы
Остались вопросы?














