- Страница подбора недвижимости ВКБ-Новостройки
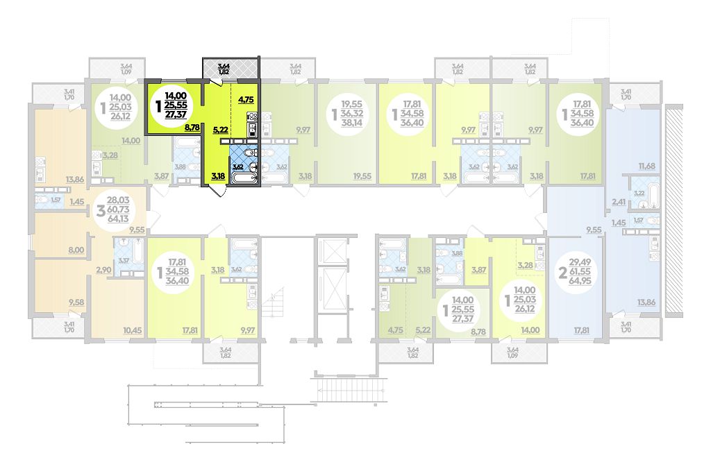
- Квартира № 004 в ЖК Суворовский : подъезд 1, этаж 1, 27.37 м2 в Ростов-на-Дону, стоимость: купить квартиру – 145 780 ₽ за квадрат от застройщика.
Студия
ЖК Суворовский
Планировка
Расположение
В продаже
Добавить в избранное
Поделиться
Скачать .pdf
Студия
в ЖК Суворовский
в ЖК Суворовский
Площадь
27.37 м2
Подъезд
1
Этаж
1
из
17
Номер
004
Срок сдачи
Дом сдан
Корпус
Литер 02, кв. 1-7
Цена за квадратный метр
145 780 ₽
Тип дома
Блочный
Застройщик
ООО ИСК Ника
Жилая площадь
14.00 м2
Адрес
Россия, Ростовская область, г. ростов-на-Дону, район Октябрьский, ул. Вавилова, в районе военного городка №140, Ростовской -на- Дону КЭЧ района
Все характеристики
3 990 000 ₽
В ипотеку от 15 971 ₽/мес.
Получить предложение
Запись на экскурсию
Акции
Отделка
В Суворовском все квартиры сдаются с готовым ремонтом. Получайте ключи и переезжайте!

Калькулятор ипотеки
Произведенные расчеты носят приблизительный характер. Более точную информацию могут предоставить представители банка.
по заданным параметрам мы не смогли найти предложения,
попробуйте изменить параметры калькулятора
попробуйте изменить параметры калькулятора
Произведенные расчеты носят приблизительный характер. Более точную информацию могут предоставить представители банка.
Доступные программы
По заданным параметрам мы не смогли найти предложения,
попробуйте изменить параметры калькулятора
Остались вопросы?










