- Страница подбора недвижимости ВКБ-Новостройки
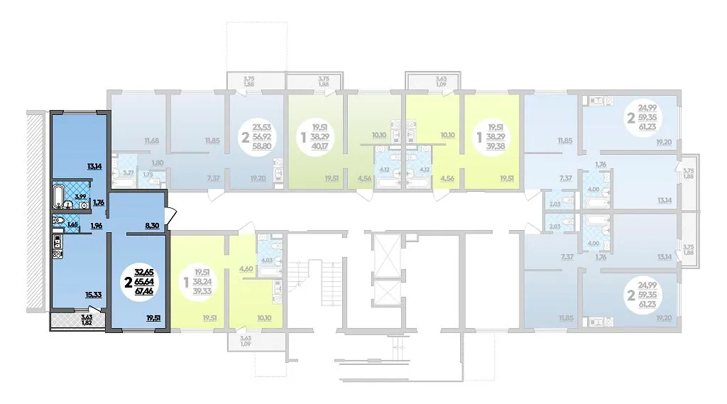
- Квартира № 241 в ЖК Горгиппия : подъезд 4, этаж 1, 67.46 м2 в Анапа
2-комнатная квартира 67.46м2 в ЖК Горгиппия, №241
2-комнатная квартира 67.46м2 в ЖК Горгиппия, №241
Страница квартиры2-комнатная квартира
ЖК Горгиппия
Планировка
Расположение
В продаже
Добавить в избранное
Поделиться
Скачать .pdf
2-комнатная квартира
в ЖК Горгиппия
в ЖК Горгиппия
Площадь
67.46 м2
Подъезд
4
Этаж
1
из
16
Номер
241
Срок сдачи
Дом сдан
Корпус
Литер 28 ОИ
Тип дома
Блочный
Застройщик
ОБД-Инвест-1 СЗ
Жилая площадь
32.65 м2
Адрес
Краснодарский край, Муниципальное образование город-курорт Анапа, г.Анапа, бул.Эллада
Все характеристики
Получить предложение
Запись на экскурсию
Отделка
В микрорайоне Горгиппия в литере 28 можно приобрести квартиру в предчистовой отделке. Также представлены варианты квартир без отделки и с улучшенной отделкой – подробности уточняйте у в отделе продаж.

Остались вопросы?




