- Страница подбора недвижимости ВКБ-Новостройки
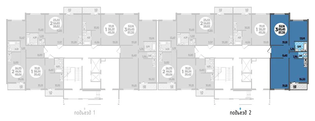
- Квартира № 100 в ЖК Город у моря : подъезд 2, этаж 1, 87.35 м2 в Новороссийск, стоимость: купить квартиру – 125 930 ₽ за квадрат от застройщика.
3-комнатная квартира 87.35м2 в ЖК Город у моря, №100
3-комнатная квартира 87.35м2 в ЖК Город у моря, №100
Страница квартиры3-комнатная квартира
ЖК Город у моря

Планировка
Расположение

Продано
Добавить в избранное
Поделиться
Скачать .pdf
3-комнатная квартира
в ЖК Город у моря
в ЖК Город у моря
Площадь
87.35 м2
Подъезд
2
Этаж
1
из
16
Номер
100
Срок сдачи
Дом сдан
Корпус
Литер 9
Тип дома
Улучшенный
Застройщик
Деловое Партнерство СЗ
Жилая площадь
52.16 м2
Адрес
Краснодарский край, г. Новороссийск
Все характеристики
Получить предложение
Отделка
Выбирайте квартиру с готовым ремонтом от застройщика, получайте ключи и переезжайте! Вы экономите деньги, нервы и время на поиске строительной бригады и закупке материалов.

Напишите
нам













