- Страница подбора недвижимости ВКБ-Новостройки
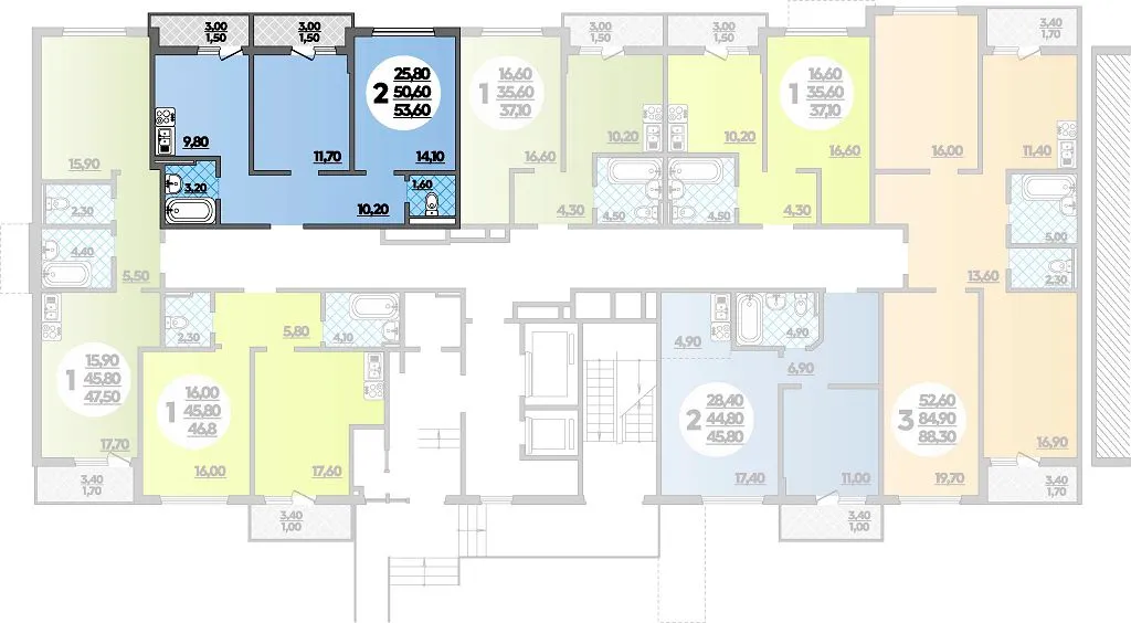
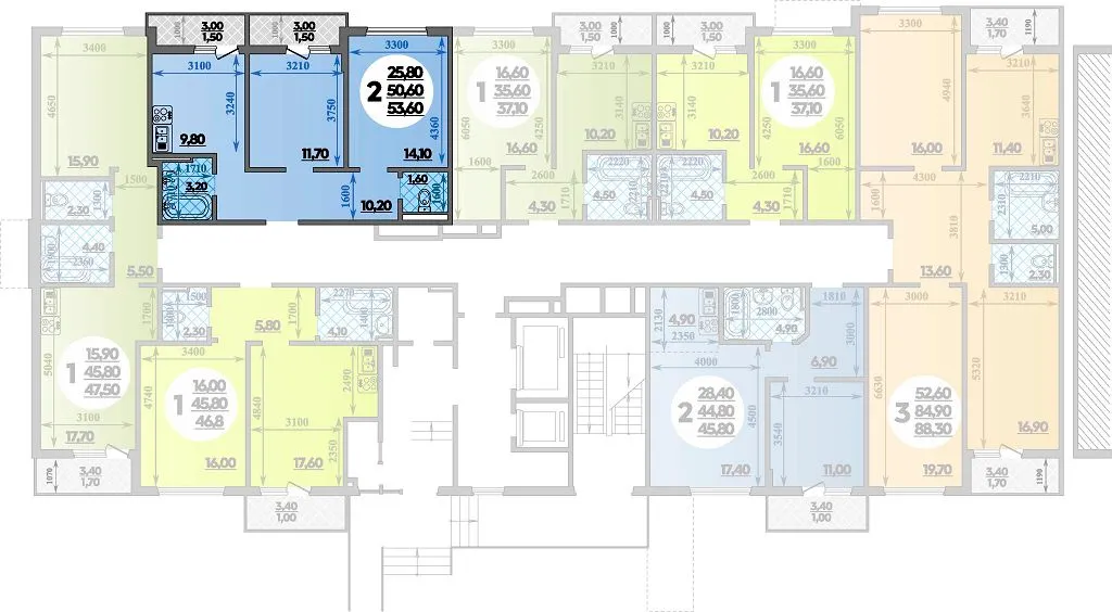
- Квартира № 003 в ЖК Парк у дома : подъезд 1, этаж 1, 53.60 м2 в Краснодар, стоимость: купить квартиру – 172 200 ₽ за квадрат от застройщика.
2-комнатная квартира 53.60м2 в ЖК Парк у дома, №003
2-комнатная квартира 53.60м2 в ЖК Парк у дома, №003
Страница квартиры

в ЖК Парк у дома
Все квартиры сдаются в предчистовой отделке в формате White box – мы взяли на себя все самые сложные, шумные, пыльные и дорогостоящие работы. Вам останется лишь самое приятное – декор. Не ограничиваем вашу фантазию в ремонте!

Калькулятор ипотеки
Произведенные расчеты носят приблизительный характер. Более точную информацию могут предоставить представители банка.
попробуйте изменить параметры калькулятора
Произведенные расчеты носят приблизительный характер. Более точную информацию могут предоставить представители банка.
Доступные программы
Остались вопросы?






