- Страница подбора недвижимости ВКБ-Новостройки
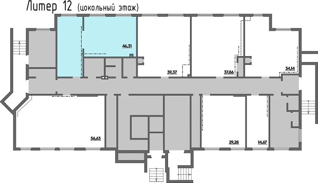
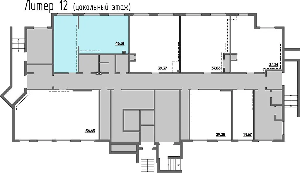
- Цены на помещения цокольного этажа в ЖК «Платовский» Литер 12, помещение 16 - ВКБ-Новостройки
Помещение 46.3 м квадратных в ЖК Платовский
Помещение 46.3 м квадратных в ЖК Платовский
Страница квартирыПомещение 46.3 м2
ЖК Платовский
Планировка
Расположение
Добавить в избранное
Поделиться
Скачать .pdf
Срок сдачи
Дом сдан
Площадь
46.3 м2
Корпус
Литер 12
Подъезд
1
Номер
16
Проект
Платовский
Стоимость
2 990 000 ₽
Стоимость за м²
64 564 ₽/м²
Получить предложение
Запись на экскурсию
Коммерческая недвижимость на объектах ВКБ-Новостройки ваш вариант для бизнеса, инвестиций и получения прибыли
Другие помещения в этом доме
Напишите
нам




